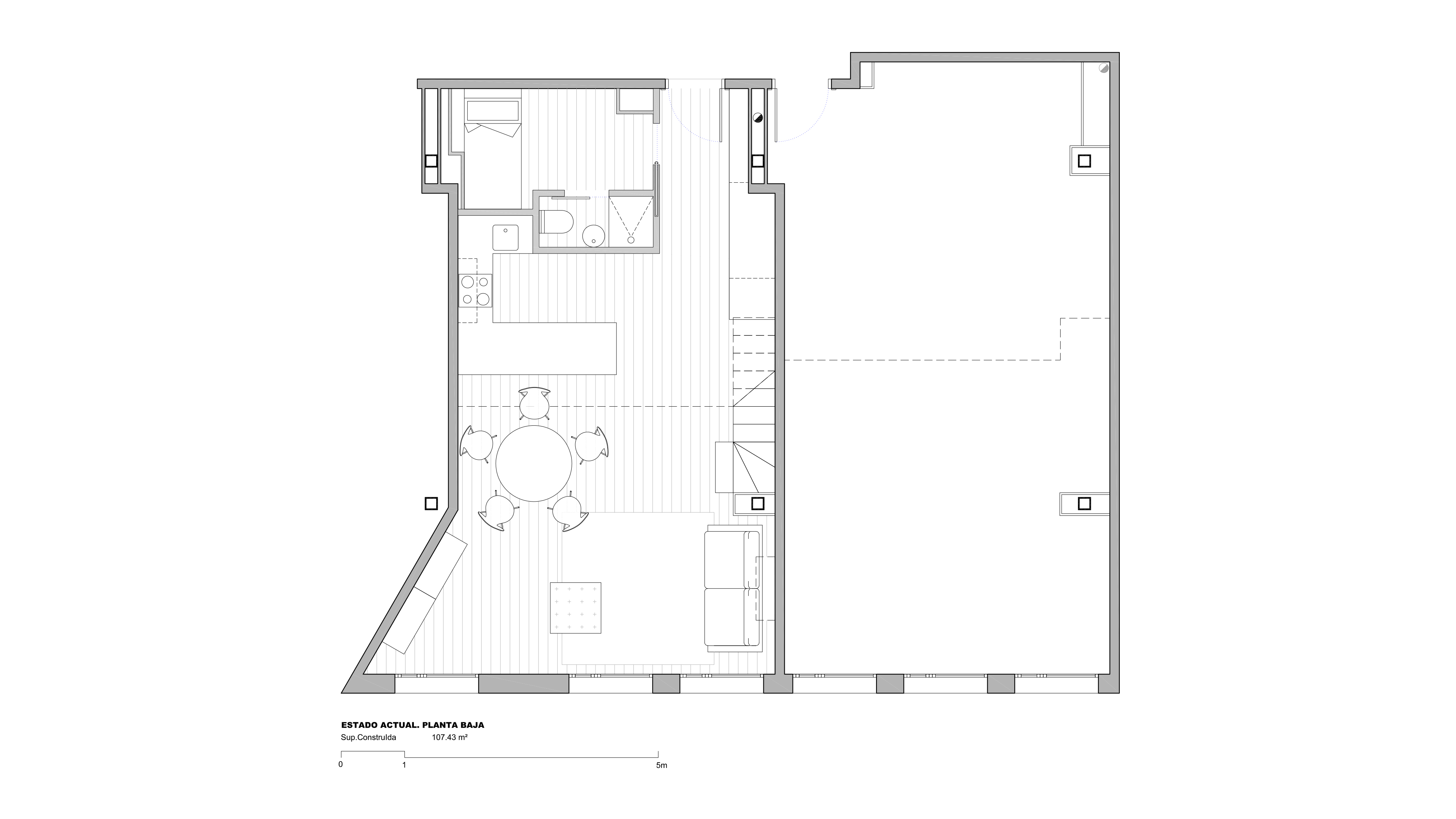
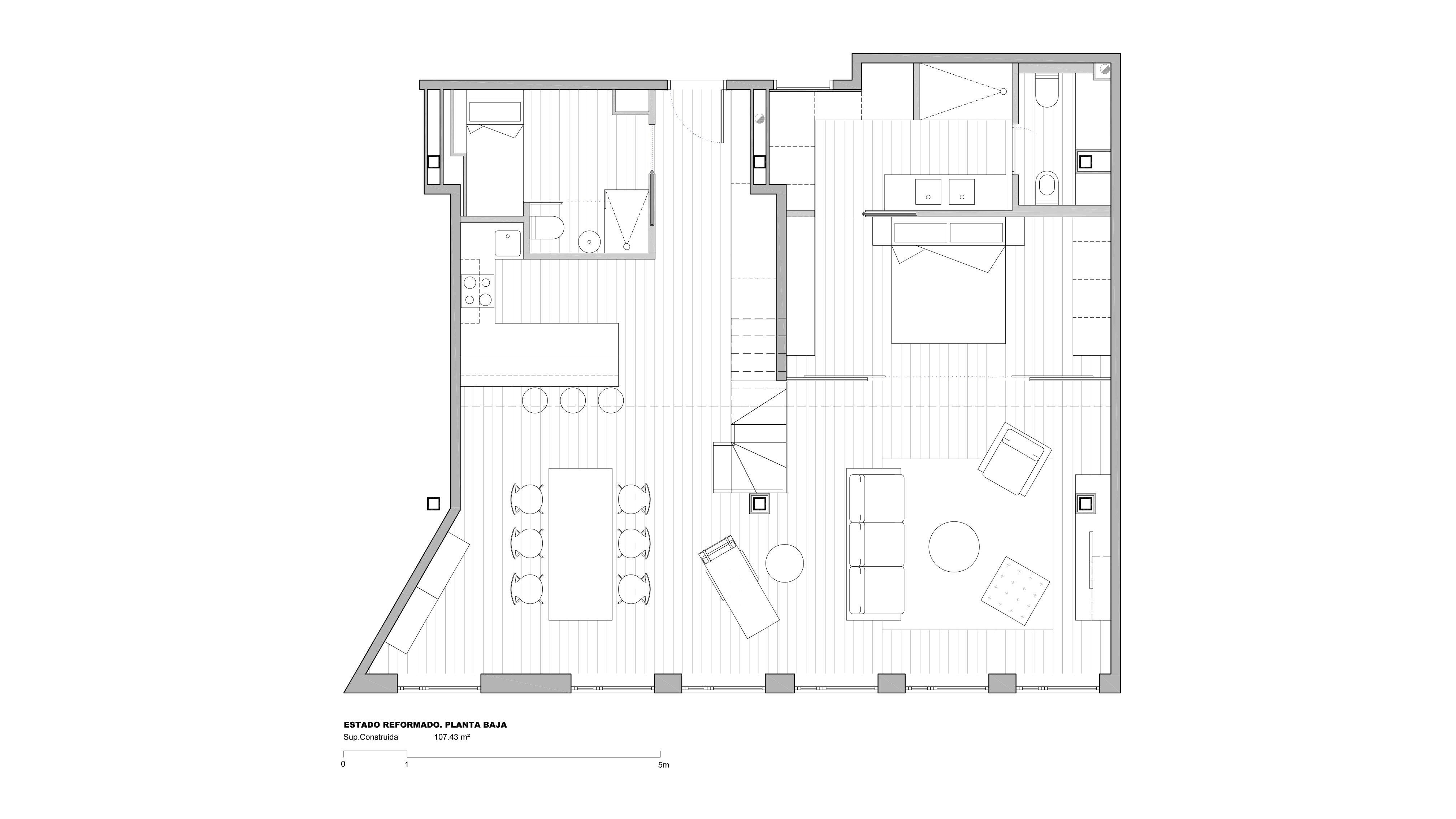
agregació de 2 habitatges en un, en edifici plurifamiliar. reforma

SITUACIÓ:
Barcelona

PROMOTOR:
Promoció privada

ARQUITECTES:
Òscar Magrinyà i Lorente

COL·LABORADORS
Eva Cotman (Arq)
FOTOGRAFIA:
magrinyà arquitectes

CONSTRUCTOR:
Palol 31 S.L.

PROJECTE:
2016

OBRA:
2016-2017

SUPERFÍCIE (m2):
163,13

PRESSUPOST (PEC):
99.766,49 €

Resumen de privacidad

Política de cookies
De acuerdo con la normativa vigente, facilitamos a los Usuarios la información relativa a las cookies que utilizamos y el motivo de su uso en el sitio web www.magrinya.net (en adelante referido como Magrinyà), así como solicitamos el consentimiento para poder utilizarlas.

Magrinyà, al igual que la mayoría de los sitios en Internet, usa Cookies para mejorar y optimizar la experiencia del usuario. A continuación encontrarás información detallada sobre qué son las “Cookies”, qué tipología utiliza Magrinyà, cómo puedes desactivarlas en tu navegador y cómo bloquear específicamente la instalación de Cookies de terceros.

¿QUÉ SON LAS COOKIES Y COMO LAS USA Magrinyà?

Las Cookies son pequeños archivos que el sitio web o la aplicación que utilizas instala en tu navegador o en tu dispositivo (Smartphone, tableta o televisión conectada) durante tu recorrido por las páginas o por la aplicación, y sirven para almacenar información de tu visita. Como la mayoría de los sitios en internet, Magrinyà utiliza Cookies para:

– Asegurar que las páginas web puedan funcionar correctamente.

– Almacenar tus preferencias, como el idioma que has seleccionado o el tamaño de letra.

– Conocer la experiencia de navegación.

– Recopilar información estadística anónima, como qué páginas ha visto el Usuario o cuánto tiempo ha estado en nuestros medios.

Magrinyà utiliza Cookies para funcionar, adaptar y facilitar al máximo la navegación del Usuario.

Las Cookies se asocian únicamente a un Usuario anónimo y su ordenador/dispositivo y no proporcionan referencias que permitan conocer datos personales. En todo momento podrás acceder a la configuración de tu navegador para modificar y/o bloquear la instalación de las Cookies enviadas por Magrinyà, sin que ello impida al acceso a los contenidos. Sin embargo, la calidad del funcionamiento de los Servicios puede verse afectada.

¿POR QUÉ SON IMPORTANTES?

– Desde un punto de vista técnico, permiten que los sitios web funcionen de forma más ágil y adaptada a las preferencias de los Usuarios, como por ejemplo almacenar el idioma, la moneda del país o detectar el dispositivo de acceso.

– Establecen niveles de protección y seguridad que impiden o dificultan ciberataques contra Magrinyà o sus Usuarios.

– Permiten que los gestores de los medios puedan conocer datos estadísticos recopilados en las Cookies para mejorar la calidad y experiencia de sus servicios.

– Pueden servir para optimizar la publicidad que mostramos en el Portal y para personalizar dicha publicidad conforme a los hábitos de navegación de los Usuarios.

¿CUÁLES SON LOS DIFERENTES TIPOS DE COOKIES QUE UTILIZA Magrinyà?

Las Cookies de sesión expiran cuando el Usuario abandona la página o cierra el navegador, es decir, están activas mientras dura la visita a Magrinyà y por tanto son borradas de nuestro ordenador al abandonarlo.

Las Cookies persistentes son un tipo de cookies en el que los datos siguen almacenados en el terminal y a los que se puede acceder y tratar durante un periodo definido por el responsable de la cookie, y que puede ir de unos minutos a varios años.

Por otro lado, según quien sea la entidad que gestione el equipo o dominio desde donde se gestionan las cookies y trate los datos que se obtengan, podemos distinguir entre Cookies propias y de terceros

– Las Cookies propias son aquellas Cookies que son asociadas a tu ordenador y gestionadas exclusivamente por Magrinyà para el mejor funcionamiento de este sitio Web. La información que recabamos se emplea para mejorar la calidad de nuestro servicio.

– Si interactuas con el contenido de Magrinyà también pueden establecerse Cookies de terceros (por ejemplo, al pulsar botones de redes sociales o visionar vídeos alojados en otro sitio web), que son aquellas establecidas por un dominio diferente de Magrinyà. Los registros realizados en las redes sociales y las cookies asociadas a las mismas, quedan sometidas a su política de cookies.

Navegar por Magrinyà supone que se puedan instalar los siguientes tipos de Cookies:

Técnicas (Google; Twitter)

Este tipo de Cookies nos facilita información sobre el uso que el Usuario realiza del Portal, como por ejemplo, qué paginas ha visitado, al registrarte, cuando inicias sesión en el Portal o si has tenido problemas técnicos en los accesos a ciertas páginas. Estas cookies no permiten identificarle, puesto que la información que recogen es anónima y será utilizada únicamente para trabajos de mejora de diseño de las páginas y de navegación por el Portal, estadísticas de uso, etc.

http://www.google.es/intl/es/policies/technologies/types/

http://support.twitter.com/articles/20170521-el-uso-que-hace-twitter-de-cookies-y-tecnologias-similares#

Analíticas (Google Analytics)

Se utilizan con fines estadísticos únicamente. La información se utiliza para medición de la actividad en el sitio web.

https://developers.google.com/analytics/devguides/collection/analyticsjs/cookie-usage

De personalización (Facebook)

Este tipo permite personalizar las funciones o contenidos del sitio web en función de los datos obtenidos del navegador. Mediante estas Cookies podemos presentar un sitio web en el mismo idioma del navegador usado para visitar la web.

https://fbcdn-dragon-a.akamaihd.net/cfs-ak-prn1/676572/857/360595310676682_183459869.pdf

Publicitarias (Google Adsense)

Permiten gestión más eficaz de los espacios publicitarios en base a criterios como el contenidos editado o frecuencia en la que se muestran los anuncios.

http://www.google.es/intl/es/policies/technologies/types/

¿CÓMO PUEDO CONFIGURAR MIS COOKIES?

Al navegar y continuar en Magrinyà estarás consintiendo el uso de las Cookies en las condiciones contenidas en la presente Política de Cookies. Magrinyà proporciona acceso a esta Política de Cookies con el objetivo de que el Usuario esté informado, y sin perjuicio de que éste pueda ejercer su derecho a bloquear, eliminar y rechazar el uso de Cookies en todo momento.

En cualquier caso te informamos que puedes bloquearlas o deshabilitarlas activando la configuración de tu navegador, que te permite rechazar la instalación de todas las Cookies o de algunas de ellas. La práctica mayoría de los navegadores permiten advertir de la presencia de Cookies o rechazarlas automáticamente. Si las rechazas podrá seguir usando este sitio Web, aunque el uso de algunos de sus servicios podrá ser limitado y por tanto tu experiencia en nuestro sitio Web menos satisfactoria.

A continuación te indicamos los links de los principales navegadores y dispositivos para que dispongas de toda la información para consultar cómo gestionar las cookies en tu navegador.

Internet Explorer ™: http://windows.microsoft.com/es-ES/windows7/How-to-manage-cookies-in-Internet-Explorer-9

Safari ™: http://support.apple.com/kb/HT1677?viewlocale=es_ES

Google Chrome ™: https://support.google.com/chrome/answer/95647?hl=es&hlrm=en

Mozilla Firefox ™: http://support.mozilla.org/es/kb/cookies-informacion-que-los-sitios-web-guardan-en-?redirectlocale=en-US&redirectslug=Cookies

El Usuario puede revocar su consentimiento para el uso de cookies (opt-out), en su navegador, a través de la configuración de las opciones que los navegadores ponen a su disposición para esta finalidad.

¿ACTUALIZAMOS NUESTRA POLÍTICA DE COOKIES?

Magrinyà puede modificar esta Política de Cookies en función de nuevas exigencias legislativas, reglamentarias, o con la finalidad de adaptar dicha política a las instrucciones dictadas por la Agencia Española de Protección de Datos.

Por ello, es posible que actualicemos la Política de Cookies de nuestro sitio Web, recomendándote revisar esta política en alguna ocasión que acceda a Magrinyà, con el objetivo de estar adecuadamente informado sobre cómo y para qué usamos las Cookies.